ハウスゲート枚方店のブログ
枚方市を中心に不動産情報や関連する出来事など、枚方市に根付いた情報を掲載中。
© ハウスゲート枚方店のブログ All rights reserved.
 
 順調に進んでいます。 樟葉新築分譲地
こんにちわ営業のMです。
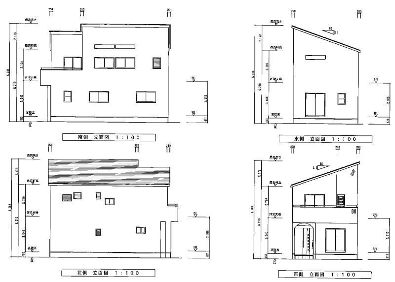
樋之上町2号地の立面図があがって来ました。
かたながれの屋根・勾配天井です。 (*^ー^)ノ
2階リビング仕様ですのでリビングも凄く明るいと思います。
ベランダも大きく取り、水道、電気も完備です。
(う~ん、格好いい外観です!)

こちらは上棟して間もない3号地です。
LDKがなんと20帖あります。 ((((((ノ゚⊿゚)ノ
奥行きがあり、かなり広くなってます。
(広すぎて大変かも??)


後、お話しさせて頂けるお客様が1組となっております。
樟葉駅徒歩圏内でお探しのお客様にはピッタリですよ!
近隣相場は3500万円~となっております・・・。 ∑(゚Д゚)
コメント
- この記事へのトラックバックはありません。 




 
  




この記事へのコメントはありません。